Mixed Use Development
Baggot Street, Dublin 4

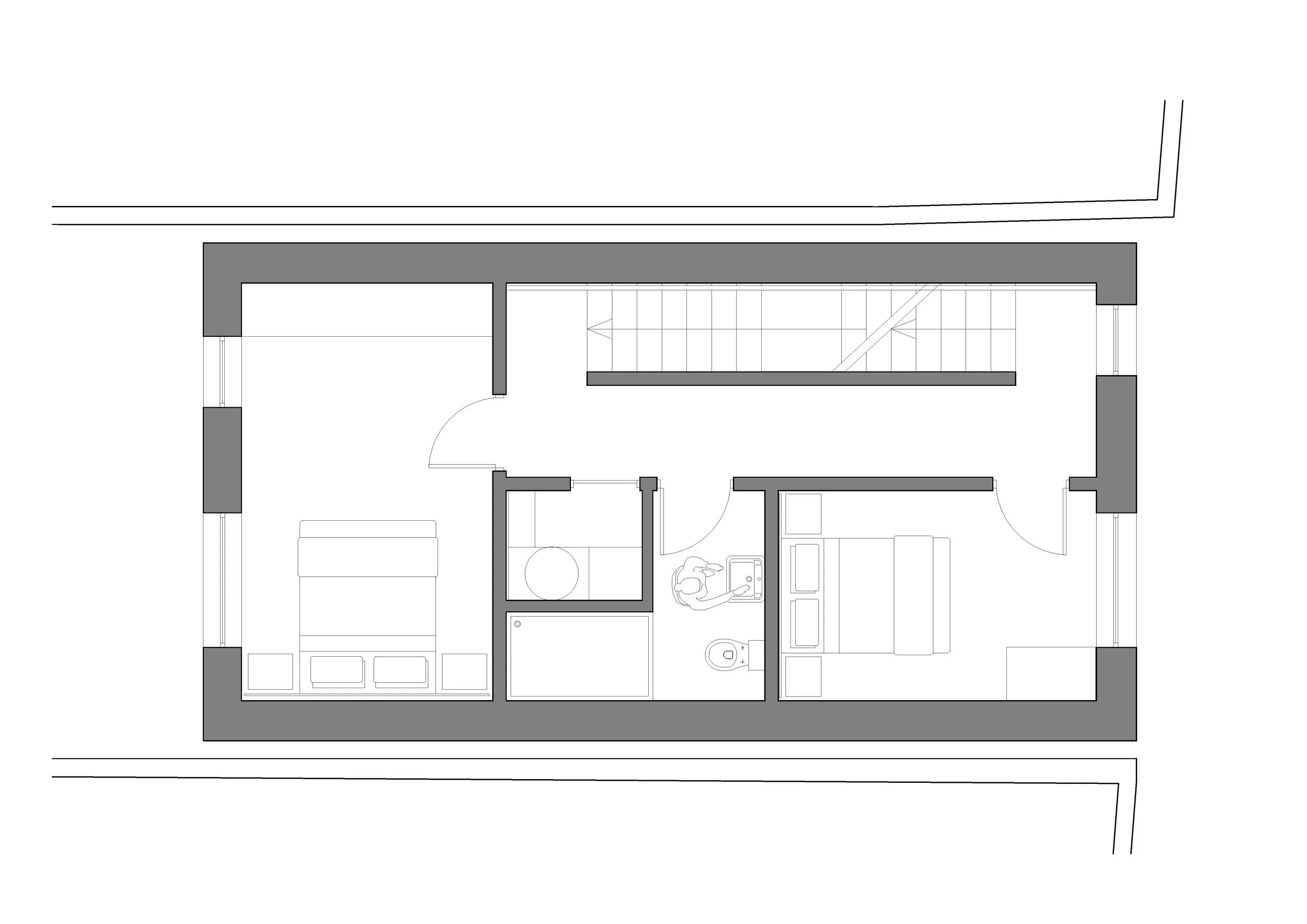
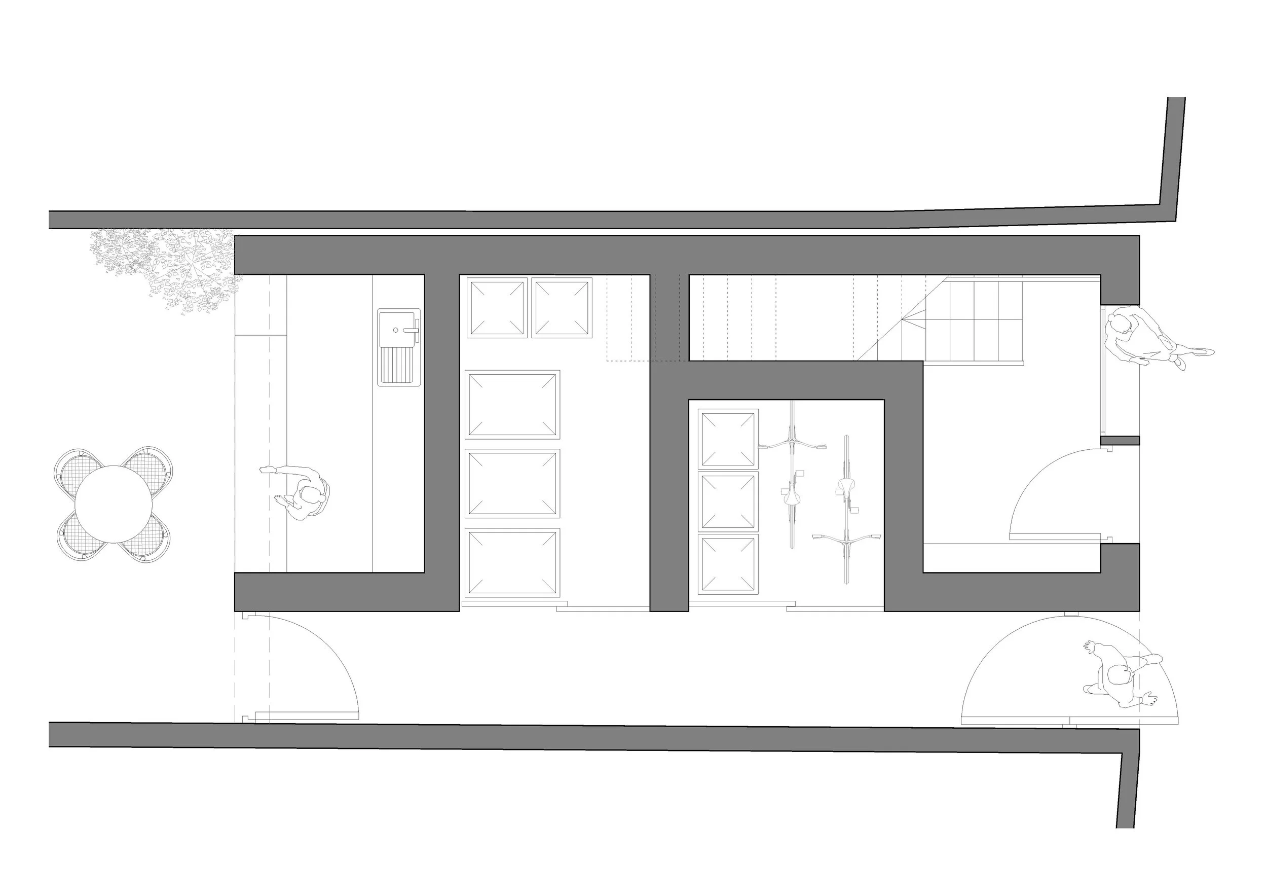
With a frontage to Baggot Street and running to Eastmoreland Lane at its rear, this site has great potential. Having gone through various iterations, the scheme lodged for Planning proposes apartments to the existing building on Baggot Street: with a small floor plate on each floor, a modern extension is proposed to the rear on each floor, allowing the front street-facing rooms to remain as they are. To the rear a two bedroom apartment provides a crisp edge to the lane. In between the two, Saba restaurant gets an outdoor space, a secure access and better storage. With an encouraging pre-planning process we are hoping for a positive response in the near future.

 
Previous
Previous

House in Rathgar

Next
Next

Shoreline Hotel, Donabate